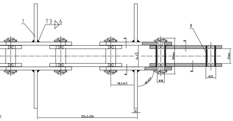
Abstreiferkette kann zwei Arten unterteilt werden. Einer ist Schaber Rollenkette, der andere ist Schaber geschmiedete KetteDie Hauptgrößen sind P125 und P160. Auf beiden Seiten der Platte befinden sich Schaber. Daher wird es Schaber genannt Kette.Diese Kette muss normalerweise vor der Produktion gemäß der Zeichnung hergestellt werden.
Zeichnung folgen ist eine der Abstreiferketten.